
成約御礼(リフォームし生まれ変わって販売予定です!)
皆さん、こんにちは!
売買部の松本です。
このたび、ご売却をお任せ頂いておりました、高津区久地2丁目にあるマンション「エクセレント玉川」が、無事にご成約となりました。
ご売却をお任せいただきました売主様、誠にありがとうございました。また、ご購入頂きました、買主様ありがとうございます。
今回の売主様は、賃貸として運用していた物件を入居者の退去のタイミングでご売却検討されました。
少し遠方にお住まいでしたので、売主様のお住まいのエリアまでお伺いし、直接お話しさせていただく機会をいただき、ご説明させて頂きました。お忙しい中ご対応くださり、心より感謝申し上げます。
エクセレント玉川は、多摩川の自然を感じながらも交通アクセスの良い立地が魅力のマンションです。
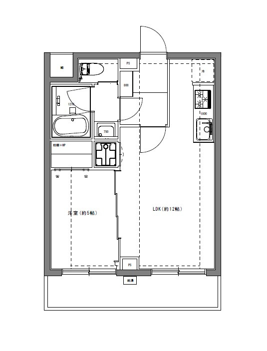
今後は、室内のリフォーム工事を実施し、より魅力的なお部屋として再販売を予定しております。
新たに生まれ変わるエクセレント玉川を、ぜひお楽しみに。
販売開始の際は、売買部のブログ等でも改めてご案内いたします!
【予定間取り】価格:2,000万円台予定
